Crime & Courts

‘Our system is broken.’ How robbery gone bad, nearly all-white jury put SC man on death row

Richard Moore, death row inmate scheduled to be executed Nov. 1, 2024.
Richard Moore, death row inmate scheduled to be executed Nov. 1, 2024. Attorneys for Richard Moore

After a 13-year break in executions, South Carolina is set to kill its second death row inmate in two months on Friday evening.

But the unusual case of Richard Moore, who shot and killed Spartanburg County store clerk James Mahoney during a robbery gone wrong, may represent a grim series of landmarks.

He would likely be the first man executed in South Carolina for a murder in which he didn’t take a weapon to the scene. And the last Black man executed in the state after being convicted by a jury where all the Black jurors were removed.

His case was put up for the death penalty after a contentious election for solicitor in which the incumbent boasted about how many men he’d sent to death row and the challenger was accused of being soft on crime. After the incumbent lost, he moved to seek the death penalty for Moore.

Moore’s case is a clear “outlier” and a “disproportionate” application of the death penalty, said South Carolina Supreme Court Justice Kaye Hearn, in a dissent to a 2022 ruling upholding Moore’s death penalty.

It is evidence, she wrote, that when it comes to capital punishment in South Carolina, “our system is broken.”

Even the judge who sentenced Moore, now 59, to death has asked for mercy. “Richard Bernard Moore’s case is unique,” wrote judge Gary Clary, a former circuit court judge, in an application to Gov. Henry McMaster for clemency for Moore.

While accounts differ about what happened the morning of Sept. 16, 1999, when Moore entered a Spartanburg store, everyone agrees he did not have a weapon on him.

By 1999, Moore had already been convicted of several violent strong arm robberies and assaults in Spartanburg and his native Michigan, but he had never been charged with murder. According to his son, Lyndall Moore, he was on a downward spiral brought on by his addiction to crack cocaine.

Prosecutors argue that addiction was the motive in the murder, and that Moore was robbing the store that night for money to buy drugs. Moore’s attorneys said he was there to buy beer and cigarettes.

But following an altercation and a struggle, Mahoney drew a gun that Moore wrenched from his hands. The crime’s only witness, who didn’t see how the conflict began, said Moore shot at him. Moore and his attorneys say that Mahoney fired the first shot towards the back of the store where the witness sat.

The clerk then drew a second gun and the two men exchanged gunfire at nearly point blank range.

Moore was hit in the arm, Mahoney was shot fatally in the heart. Dripping blood, Moore grabbed $1,408 in cash and fled into the night. He was arrested minutes later after he crashed his car into a telephone pole.

“I did it, I did it, I give up, I give up,” Moore told the officer at the scene.

For all its violence, the facts of the case are “so different from the usual brutal premeditated slayings for which South Carolina juries give out the death penalty that condemning Moore to death is disproportional, or so far out of line, as not to be lawful,” Hearn wrote in her dissent.

Clary wrote that he came to his conclusion that Moore’s case was different after studying the cases of all the people residing on death row. Unless it is halted by either the courts or clemency from McMaster, Moore will be executed by lethal injection at 6 p.m. on Nov. 1 inside the state death chamber at the Broad River Correctional Institute in Columbia, South Carolina.

“There is not a prosecutor in this state who would seek the death penalty on Mr. Moore’s case today if this case happened today,” said John Blume, one of Moore’s lawyers and nationally known expert on the death penalty. “This would be just a manifest miscarriage of justice if this case is allowed to go forward.”

A robbery gone bad?

On the early morning of Sept. 16, 1999, Terry Dean Hadden had finished working second shift. He’d gone to Nikki’s Speed Mart where he’d polished off two hot dogs and a Coke, and was sitting in the back of the store playing video poker. The small store off Whitney Road was an all-night haunt that sold hot dogs, beer and cigarettes around the clock. Five gambling machines lined the back wall.

Mahoney was watching TV behind the counter after a 1 a.m. rush. The 42-year-old clerk who loved NASCAR was a thin man with health problems, including arthritis and poor vision, prosecutors said at trial.

Around 3 o’clock that morning, Hadden heard the bell ring as Richard Moore entered the store.

No cameras were in Nikki’s Speed Mart, and Hadden, the only eyewitness who was blind in his right eye, was sitting with his back to the two men. He didn’t see how the confrontation between Moore, then 36, and Mahoney started.

Absorbed in his game, Hadden suddenly heard Mahoney yell, “What the hell do you think you’re doing?” according to the Spartanburg Herald Journal’s coverage of the trial.

At trial, Hadden said he turned and with his good eye saw Moore pointing a .45 semiautomatic handgun at him with one hand while using his free hand to hold down both of Mahoney’s hands. Moore told Hadden not to move and fired once at him, missing, Hadden said.

Hadden said he played dead as Mahoney freed himself and drew a .44 revolver and the two men opened fire on each other.

Prosecutors argued that blood patterns showed Moore crossed twice over Mahoney’s body to grab cash before fleeing the store.

But Moore, who didn’t testify at his trial, maintained in filings that a dispute over whether Moore could use change in a “change cup” led Mahoney to draw the .45 semiautomatic on him.

It was Mahoney, Moore has said in court documents, who fired the first shot, which nearly struck Hadden at the back of the store.

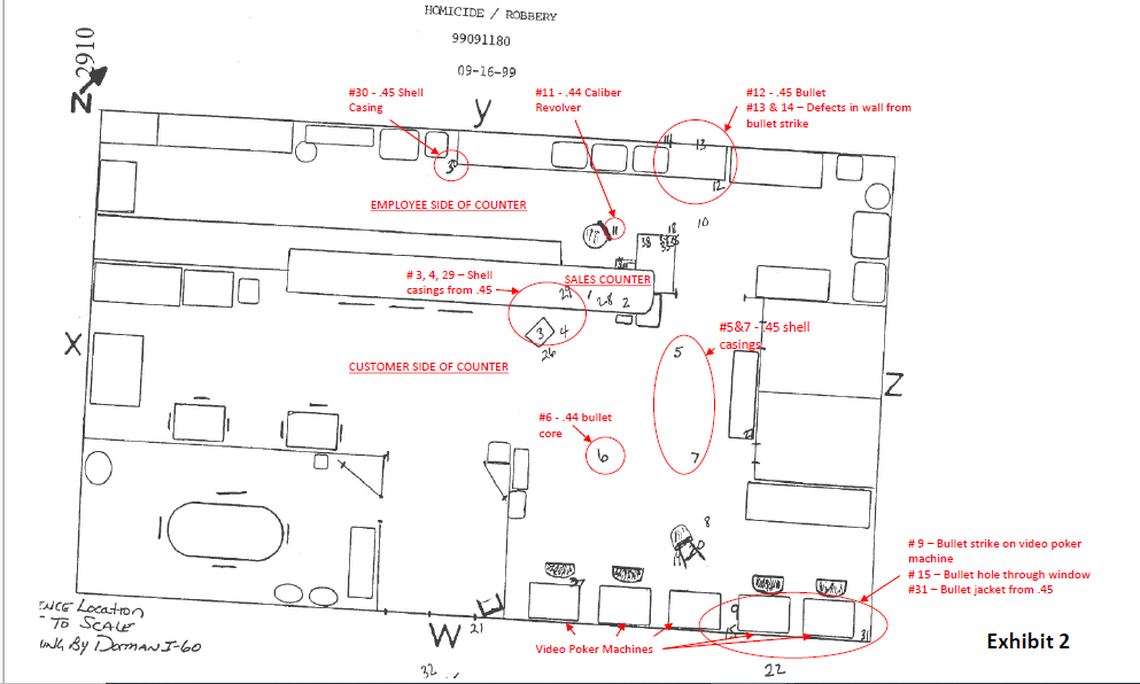
The placement of shells around the scene of the crime supports Moore’s story, according to an affidavit submitted by Ralph Tressel, the chief criminal investigator for the Cobb County Georgia’s district attorney’s office, a forensic expert hired by the defense for Moore’s appeals.

In particular, a .45 caliber shell, which would have been ejected back and to the right of the shooter, was found behind the employee counter. This casing corresponded with a bullet hole and fragments near the video poker machine, according to Tressel. That was “consistent with Moore’s testimony that the first shot was fired by the .45 while the store clerk still had possession of the weapon,” the Tressel wrote.

A diagram of Nikki’s Speed Mart made following the shooting of James Mahoney showing the location of evidence including shell casings and bullet fragments prepared form Richard Moore’s defense team by Ralph Robert Tressel, the chief criminal investigator at the Cobb County District Attorney’s Office.
A diagram of Nikki’s Speed Mart made following the shooting of James Mahoney showing the location of evidence including shell casings and bullet fragments prepared form Richard Moore’s defense team by Ralph Robert Tressel, the chief criminal investigator at the Cobb County District Attorney’s Office.

But in 2022, when the South Carolina Supreme Court examined whether the death penalty was proportional, four of the five justices argued that it didn’t matter whether Moore was armed when he entered the store.

“The significant fact is that Moore became armed at some point during the commission of the offenses,” according to the majority opinion.

Hearn vigorously disagreed.

Courts in Florida, Hearn argued, had found it disproportionate to impose the death penalty on a robbery gone bad when the defendant, who had pocketed his gun and was on the way out the door, turned and shot the clerk after the clerk made a sudden movement.

“By improperly focusing on whether the crime committed by Moore meets the legal definition of armed robbery, the majority completely loses sight of the vast difference between a ‘robbery gone bad’ and a planned and premeditated murder,” Hearn wrote.

Prosecutors, Hearn wrote, conceded that they could not come up with any other death penalty case in South Carolina where the defendant was unarmed at the start of the robbery.

This “striking concession,” which Hearn wrote, “seriously undermines the suggestion that Moore’s sentence is sufficiently similar to other cases to warrant capital punishment” and “supports my position that Moore’s death sentence is disproportionate”

Gowdy vs. Gossett

The year following Moore’s arrest for Mahoney’s murder, Holman Gossett, the solicitor who oversaw Spartanburg County, was embroiled in a bruising Republican primary fight.

His challenger was a former assistant U.S. attorney and an ambitious young lawyer named Trey Gowdy.

Gowdy later was elected to Congress from South Carolina’s 4th District and chaired the House “Benghazi Committee,” which grilled former Secretary of State Hillary Clinton about the Obama administration’s response to attacks on the U.S. embassy in Libya in 2012.

But in February 2000, Gowdy was at the beginning of his political career and seeking to be elected solicitor. He was challenging Gossett, who had been solicitor for 16 years, in the Republican primary.

The race soon turned nasty. The two men traded barbs in the media, and Gossett refused to debate Gowdy, attacking his lack of experience.

Two weeks before the June primary, Gossett released a letter that a 20-year-old Gowdy had written to him while a student at Baylor University in Texas.

In it, Gowdy said that he had “proudly” voted for Gossett, but he struggled to reconcile his feeling about the death penalty.

“I cannot justify capital punishment in my own mind,” Gowdy wrote. “I realize that 84% of the American populous supports capital punishment and it is the law according to our state Constitution… I ask you to please use your creativity and sensitivity to find alternative ways to punish these horrible criminal acts.”

U.S. Rep. Trey Gowdy, R-S.C., said on Twitter over the weekened that the FBI’s Deputy Director, Andrew McCabe, was not “attacked” or “grilled” during a House Intelligence Committee hearing on the issue of FBI agent Peter Strzok’s text messages that concerned the 2016 campaign. File.
U.S. Rep. Trey Gowdy, R-S.C., said on Twitter over the weekened that the FBI’s Deputy Director, Andrew McCabe, was not “attacked” or “grilled” during a House Intelligence Committee hearing on the issue of FBI agent Peter Strzok’s text messages that concerned the 2016 campaign. File. Al Drago New York Times

Attacking this letter as proof of Gowdy’s supposed flip-flopping hypocrisy, Gossett touted his own record as a hard line supporter of the death penalty.

“If I had listened to him, Spartanburg County wouldn’t have anyone on death row,” Gossett bragged to the Herald Journal. “The fact is I have more people on death row than 44 out of 46 counties. I put all of them there with my no-nonsense approach to crime.”

The last minute attack appeared to accomplish little. Gowdy won the primary with 55% of the vote, all but guaranteeing his victory in the general election, where he ran unopposed.

But for Gossett, the battle wasn’t over. That November, in what Gowdy’s supporters called an effort “targeting” the solicitor-elect, Gossett put 1,800 cases before the Spartanburg grand jury over two days, according to reports. The grand jury members, who decide whether enough evidence exists to issue an indictment, had just 22 seconds to review the material for each case.

Moore had already been indicted, but in this environment of last minute vindictiveness, Gossett decided in September to file notice to seek the death penalty in Moore’s case, says Moore’s attorney Lindsey Vann.

“I’ve talked to a number of lawyers who were up there at the time, and they said ‘We all knew that he (Gossett) was doing it in this case — that’s not your typical death penalty case — to mess with Trey Gowdy,’” Vann said. He would either need to try this weak case for execution and seek the death penalty, or drop the death penalty, proving that he was weak on the issue, Vann said.

Gowdy did not respond to requests to comment for this story.

Gossett died in 2023.

The relic of a bygone era

Moore’s trial began Oct. 19, 2001, with little fanfare. While court documents differ over whether one juror was white or Hispanic, the jury of 12 people and two alternates did not include a single Black person.

This “relic of a bygone era,” as Hearn called it, is the basis for a case before the U.S. Supreme Court that may be Moore’s last attempt to escape the death penalty. At question is whether Gowdy and his team violated the standard set out in a landmark decision, Batson v. Kentucky, which prevents attorneys from using their peremptory strikes to remove jurors because of their race.

But Batson is a “tough road to hoe,” said Stephen Bright, an attorney and professor at the Yale Law School who has argued one of the few successful Batson cases. The standard, while “not an absolute and complete failure” at stopping racial bias on juries, is “pretty close.”

In Moore’s case, the initial jury pool of 300 citizens of Spartanburg County contained 65 Black people, representative of the demographics of Spartanburg County, which is roughly 20% Black. Ninety-six jurors were questioned, roughly 20% of whom were black. After 56 were dismissed “for cause” — meaning they had circumstances that meant they couldn’t serve or expressed a view that might have biased them toward or against the defendant — 38 jurors were found to be qualified. Only three were Black.

Of those, prosecutors used their peremptory strikes to remove two before the jury was selected. The full jury was empaneled before the third Black juror could be questioned by the attorneys.

While Gowdy and his team provided race-neutral explanations during jury selection for why they struck the two potential Black jurors, these reasons do not withstand scrutiny, argue Moore’s attorneys.

One reason given for striking one potential juror was that she had failed to disclose an aspect of her criminal record, but so had six other potential white jurors, one of whom who was seated as an alternate.

In the other potential juror’s case, one reason that prosecutors gave for striking him was that his son had been prosecuted for murder. But three other white jurors with relatives who had been prosecuted were not struck by the prosecution and ended up on the jury. Among them was the jury foreperson whose brother had been prosecuted for drug possession and another juror whose mother had been prosecuted for murder.

When asked about his son’s murder conviction, the Black prospective juror told the court:

“He said he did it, so I felt like he had to pay the price. . . . I mean, got the laws you have to abide by.”

While Moore’s attorneys raised a Batson claim at the time, the trial judge found that the prosecutors gave answers that were sufficiently race neutral.

Jury selection is “fine and mysterious art that doesn’t have a hell of a lot of rules,” said Columbia attorney Joe McCulloch. “The process that arises from the Batson case was well intentioned but in practice it very seldom bears fruit.”

Courts in South Carolina and around the nation have permitted “virtually any explanation” that is race neutral as an acceptable explanation, McCulloch said.

And this only further reduces Moore’s chance at succeeding in his Batson claim as “tremendous deference is given to the trial judge,” according to Bright.

On Saturday, Oct. 20, 2001, the jury, which had been sequestered in a hotel with five guards since the trial began, found Moore guilty after deliberating for two hours.

There was no court Sunday as death penalty trials in South Carolina require a 24-hour “cooling off period” between the separate guilt and sentencing phases. With no trial to attend, the foreperson told a newspaper reporter that the jury was allowed out to play miniature golf.

On Monday, the same jury deliberated only an hour before sentencing Moore to death.

Reporter John Monk contributed to this story.

This story was originally published October 31, 2024 at 5:30 AM.

Follow More of Our Reporting on In the Spotlight

Ted Clifford
The State
Ted Clifford is the statewide accountability reporter at The State Newspaper. Formerly the crime and courts reporter, he has covered the Murdaugh saga, state and federal court, as well as criminal justice and public safety in the Midlands and across South Carolina. He is the recipient of the 2023 award for best beat reporting by the South Carolina Press Association.
Get one year of unlimited digital access for $159.99
#ReadLocal

Only 44¢ per day

SUBSCRIBE NOW